Our Services

Structural design and temporary works engineering across the UK.
Reliable external design support for contractors, developers and architects.

Maciej Wosinek
Contact Maciej!
Talk to Maciej Wosinek about our services

Structural engineering

We deliver structural design and analysis for a wide range of building types and materials across residential, commercial and industrial sectors.

Our permanent works team supports projects from initial concept through to detailed design, fabrication drawings and construction stage support. Using advanced structural modelling and practical engineering judgement, we focus on efficient, buildable and cost-effective solutions.

Sectors:
  • Residential buildings
  • Industrial units
  • Public
  • Commercial buildings
  • Temporary works
Residential buildings
Industrial units
Public
Commercial buildings
Temporary works

Services & structures type

  • Steel structures
  • Reinforced Concrete structures
  • Masonry structures
  • Basements
  • Multi-storey residential & office buildings
  • Structural alterations & refurbishments
  • Industrial units (eg. halls)
  • Villas
  • Connection & fabrication design
  • Foundation (footing, piling, underpinning)
  • Small industrial substructures (steel frames, etc.)
  • Connection design
  • Steel fabrication drawings using letests drawing methods in 3D
  • Design for modular & prefabricated buildings
  • Retaining walls
  • Structural surveys
  • Site meetings
  • CAT 1, 2 checks
  • Optimization of the structures
  • CAT 3 Independent checks
  • External design support for contractors and fabricators
  • Building Refurbishment and Structural Alternatives
  • Advanced FEM Analysis (planar & solid elements, dynamic analysis, non-linear analysis
Services structures type

Temporary works

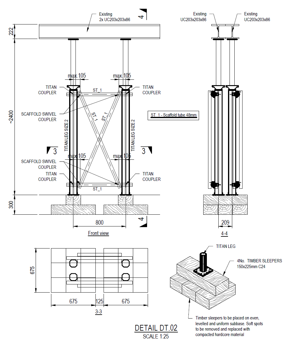
We provide comprehensive temporary works design and independent checking services to contractors and specialist companies across the UK. Our temporary works team supports projects where practical engineering, responsiveness and commercial awareness are essential. We regularly act as an external design partner for contractors requiring reliable delivery and additional technical capacity. We understand site constraints, programme pressures and the need for fast, clear and buildable design information.

Typical scope includes:

  • Site Meetings, Inspections and Surveys
  • Detailed Design Drawings and Calculations
  • CAT 3 Independent Design Checks
  • Propping, Shoring and Needling
  • Steel and Concrete Temporary Structures
  • Temporary Earthworks
  • Piling Mats
  • Excavation Support
  • Crane Bases
  • Façade Retention
  • Underpinning
  • Hoarding, Fencing, Gates and Signboards
  • Stability Assessments
  • Retaining Walls
  • Sheet Piling
  • Construction Sequence and Planning
  • AIPs for Highway Authorities
  • Demolition Sequencing
  • Rebar Stability
Temporary works

Modular buildings

We specialise in structural design for modular steel and timber buildings, supporting manufacturers, developers and contractors involved in off-site construction.

Our experience covers both the development of modular systems and the design of individual projects. We provide complete structural support including:

  • Structural analysis of modular systems
  • Connection and fabrication design
  • Transport and lifting analysis
  • BIM coordination and 3D modelling
  • Production and fabrication drawings
  • Site installation support

Our modular design approach:

  • Efficient structural systems designed for repeatability
  • Early integration of transport and lifting constraints
  • Coordination with manufacturing and site teams
  • Fabrication-ready 3D models and drawings
  • Technical support throughout production and installation
Modular buildings

Roads & Drainage Design

We provide design support for roads, drainage and external works associated with building developments and construction sites.

Civil Engineering

Our services include:

  • Access roads and temporary roads
  • Coordination with structural and site design
  • Drainage strategies

BIM & 3D Design / Other

Our design may be supported with 3D design in BIM technology which is one of the crucial points of modern engineering nowadays. Studio’s background covers also design:
  • GRC Facades – glass reinforced Concrete elements according to GRCA standards
  • Bridge structures design
  • Highway design
  • 3D / BIM modeling
  • Cooperation with scientific units
BIM & 3D Design / Other
Wider Arcada Services
Maciej Wosinek

Maciej Wosinek

Technical Director